REQUEST A TOUR If you would like to see this home without being there in person, select the "Virtual Tour" option and your agent will contact you to discuss available opportunities.
In-PersonVirtual Tour

Listed by RE/MAX Equity Group
$ 999,900
Est. payment /mo
Pending
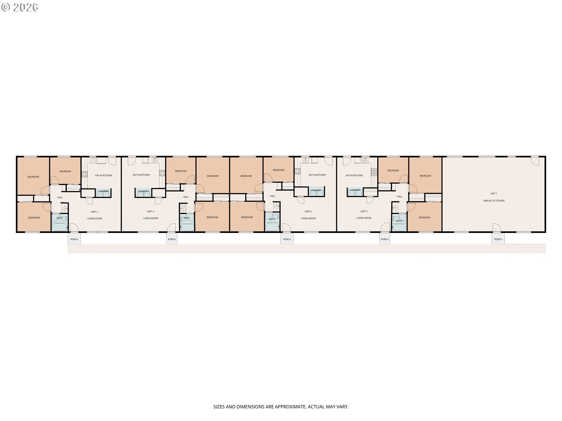
880 N PERSHING ST Mt Angel, OR 97362
4,680 SqFt
UPDATED:
Key Details
Property Type Multi-Family
Listing Status Pending
Purchase Type For Sale
Square Footage 4,680 sqft
Price per Sqft $213
MLS Listing ID 726982799
Year Built 1989
Annual Tax Amount $6,270
Tax Year 2025
Lot Size 0.430 Acres
Property Description
NEW ROOF AND SIDING 5 YEARS AGO! This property already has AMAZING CASH FLOW with upside potential!!! Two of five units have been updated which means the 6.7% cap has room for improvement. All units have THREE FULL BEDROOMS, washer and dryer hookups and PRIVATE FENCED IN BACKYARDS WITH STORAGE UNITS in each. Mt. Angel typically has a limited supply of available rentals unlike many other areas. You won't find a better deal than this. RUBS in effect. Hurry now before it is gone!!! *** DO NOT ENTER PROPERTY ***
Location
State OR
County Marion
Area _170
Zoning RM
Rooms
Basement Crawl Space
Interior
Heating Zoned
Cooling None
Exterior
Roof Type Composition
Garage No
Building
Lot Description Level
Story 1
Foundation Concrete Perimeter
Sewer Public Sewer
Water Public Water
Level or Stories 1
Schools
Elementary Schools St Marys
Middle Schools Mt Angel
High Schools Kennedy
Others
Acceptable Financing Cash, Conventional
Listing Terms Cash, Conventional

NEARBY SCHOOLS & PROPERTIES

GET MORE INFORMATION
QUICK SEARCH






